Moderne renovierte Bürofläche mit Klima und High Speed Internet
Die Bürofläche besticht durch helle, klimatisierte Räume mit bodentiefen Panoramafenstern, 3 m Raumhöhe und akustikoptimierten Decken. Hochwertige LVT-Designböden und moderne LED-Beleuchtung (500 Lux) schaffen ein angenehmes Arbeitsumfeld. Die Bürofläche verfügt über Teeküche, Aufenthaltsraum und moderne Sanitärräume.
Dank High-Speed-Internet mit redundanter Glasfaseranbindung sind Sie digital bestens vernetzt.
Das gesamte Gelände ist videoüberwacht und verfügt über einen 24/7-Wachdienst mit regelmäßigem Streifendienst und Wachhunden – ein Maximum an Schutz für Mitarbeiter und Eigentum. Zum Gebäude gehören Premium-Parkplätze in Gebäudenähe: markiert und asphaltiert.
Die gepflegte Parkanlage bietet Grünflächen, Pavillons und einen Outdoor-Fitnesspark. Das repräsentative Treppenhaus mit Personenaufzug und Granitboden unterstreicht den hochwertigen Charakter des Gebäudes. Die Vermietung erfolgt direkt vom Eigentümer – provisionsfrei.
Bezugsfertig ab März 2026


Das Bürogebäude 10 überzeugt durch eine großzügige Fläche und eine moderne Ausstattung, die optimale Voraussetzungen für verschiedenste Nutzungen bietet.
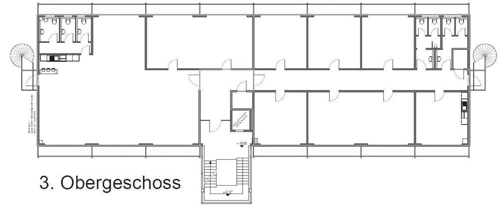
- Fläche: 463 m²
- Helle und moderne Büros mit Panoramafenstern
- Hochwertiger PVC-freier Holzoptikboden
- Neue moderne Sanitärbereiche & Teeküchen
- Moderne LED-Technik mit 500 Lux, energiesparend und arbeitsfreundlich
- Vollständig klimatisiert + Sonnenbeschattung
- Redundante High-Speed-Internetversorgung (2 Glasfaserwege) + WLAN WiFi 7
- PKW-Parkplätze & Fahrradstellplätze
- Geschlossenes Industrieparkgelände mit Kameraüberwachung
- 24/7 Wachdienst & Schäferhunden
- Edelstahlverkleideter Schnellaufzug (8 Personen)
- Notstromversorgung
- 24/7 Hausmeisterservice
- Decken Schallabsorbierend & Wände hell gestrichen
- Sehr gute ÖPNV-Anbindung |Direkte Anbindung zu A3 / A45 / A66 / B26
- Park-Erholungsflächen & Outdoor-Fitnessbereich
- Ideale Infrastruktur mit Restaurants & fußläufigen Einkaufsmöglichkeiten
Parkplätze und Freiflächen
PKW-Parkplätze
Ausreichend asphaltierte, markierte PKW-Parkplätze in Gebäudenähe. Anmietung nach Bedarf.
Grünflächen
Der Park bietet große Grünflächen mit Blumen, Blühwiesen, Gehölzen, Biotop, Raucherunterstände sowie Outdoor-Sitzmöglichkeiten und beheizbare Außen-Pavillons für Kreativ-Pausen.
Besonderes Highlight ist unser Outdoor Fitnesspark. Mitten im sattgrünen Herzen unserer firmeneigenen Parkanlage können Mieter jederzeit alle aufgebauten Geräte nutzen und dabei Kraft für die täglichen Herausforderungen tanken.
Betriebs-/Nebenkosten
Die monatlichen Vorauszahlungen für die Betriebs- und Nebenkosten betragen aktuell:
a) Verbrauchsunabhängige Nebenkosten
Außenanlage/Gemeinschaftsfläche (Winterdienst, Pflege und Unterhaltung Grün-
und Außenanlagen, Reinigung Außenanlagen/Straßen, Bewachung/Pförtnerdienst
24/7, Videoüberwachung Ein-/Ausfahrt), Brandmeldeanlage, Rauchwärmeabzug, Gebäudeversicherung, Grundsteuer. Die Abrechnung erfolgt am Ende der Abrechnungsperiode durch einen Sachverständigen bezogen auf die Mietfläche.
Auf Anfrage
b) Heizkosten
Die Abrechnung der Heizkosten erfolgt am Ende der Heizperiode durch einen Sachverständigen bezogen auf Mietfläche unter Berücksichtigung der Gesamtheizfläche sowie gemessenem Verbrauch.
Auf Anfrage
c) Wasser/Abwasser/Niederschlagswasser
Die Berechnung erfolgt nach Satzung der Marktgemeinde Großostheim.
d) Strom
Der gesamte Strombedarf des IndustrieHandelsPark Süd Großostheim wird über eine Photovoltaikanlage vor Ort erzeugt bzw. als Ökostrom über die Servicegesellschaft zentral beschafft und den Mietern nach Verbrauch berechnet. Der Verbrauch wird über Stromzähler erfasst und monatlich in Rechnung gestellt. Durch Beschaffungsbündelung bzw. PV-Stromerzeugung werden attraktive Strompreise erzielt.
e) Müllentsorgung
Die Berechnung der Entsorgungskosten erfolgt nach Satzung des Landkreises Aschaffenburg.
Gewerbesteuer
Der Gewerbesteuerhebesatz der Gemeinde Großostheim beträgt derzeit: 390 %.
Facilityservice
Wünschen Sie hausmeisterliche Betreuung?
Gerne bieten wir Ihnen ein Servicepaket an. Unser hauseigenes Servicepersonal steht mit 24-Stunden-Bereitschaft zur Verfügung.
Im Rahmen des Facilityservice bieten wir Ihnen auf Wunsch ein umfassendes Servicepaket an (z.B. Planungen, technische Ausführungen, Installationen, Umbaumaßnahmen nach Kundenwunsch, Unterhaltsreinigung, Fensterreinigung, etc.).
Für einen Besichtigungstermin stehen wir nach vorheriger Terminvereinbarung gerne jederzeit zur Verfügung. Bitte wenden Sie sich an Ihre Ansprechpartner Stefanie Wissler oder Steffen Wissel Tel.: 06026 / 9747-0 oder service@wideflex.de









